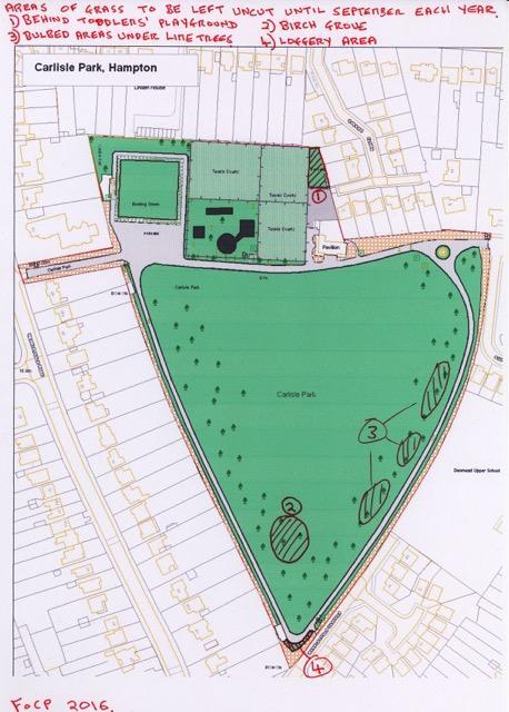
Long grass provides a valuable habitat for insects and thus encourages bird life and bats.

With the agreement of the Parks Department and the main contractor, Continental Landscapes several areas of longer grass have now been established. This map of the park shows the areas agreed to be left unmown until September each year.

a map of areas of grass

Areas of grassAreas of grass

Areas of grass